's-Gravenhage
Waalsdorperweg 18
€ 1.100.000,- k.k.
Media
Afbeeldingen
Plattegronden
Omschrijving
Hier woon je buiten én in de stad, op een perfecte locatie tussen strand en centrum.
In het gewilde en groene Benoordenhout staat dit zeer ruime 3-laags familiehuis uit 1927. Een huis met maar liefst 6 slaapkamers, 2 badkamers, een zeer diepe zonnige achtertuin grenzend aan het bos én een royale voortuin. Dankzij de ligging in een kindvriendelijke, rustige buurt aan de rand van het Hubertuspark woon je hier midden in het groen, met alle voorzieningen binnen handbereik. Ideaal voor gezinnen die ruimte en de perfecte balans tussen stad en natuur zoeken – en waar thuiswerken en gezinsleven moeiteloos gecombineerd kunnen worden.
De buurt: Benoordenhout
Wonen in Benoordenhout betekent het beste van twee werelden: rust en groen, met alle voorzieningen om de hoek. Deze geliefde wijk wordt omringd door prachtige parken zoals het Hubertuspark, Park Arendsdorp en Park Clingendael, waar je direct kunt wandelen, hardlopen of ontspannen. Basisscholen, middelbare én internationale scholen, diverse sportverenigingen (hockey, tennis, padel, paardrijden, cricket, golf, voetbal) en luxe winkels liggen binnen loop- of fietsafstand.
Voor de dagelijkse boodschappen en gezellige restaurants of wijnbars zijn het Van Hoytemaplein en het Willem Royaardsplein de ideale plekken. Strand, duinen, natuurgebied Meijendel, Scheveningen en het Haagse centrum zijn in slechts tien minuten per fiets of met het openbaar vervoer bereikbaar. Dankzij de Hubertustunnel is de Waalsdorperweg verkeersluw geworden en zijn de uitvalswegen (A44, A4, A12, A13) snel te bereiken. Ruime parkeergelegenheid is er voor de deur.
Het familiehuis
Begane grond
Entree met tochtportaal, ruime hal en toegang tot de kelder. Modern toilet met wastafel. Sfeervolle woon-/eetkamer met open haard en openslaande deuren naar de diepe, zonnige achtertuin. Aan de voorzijde een open keuken met diverse inbouwapparatuur.
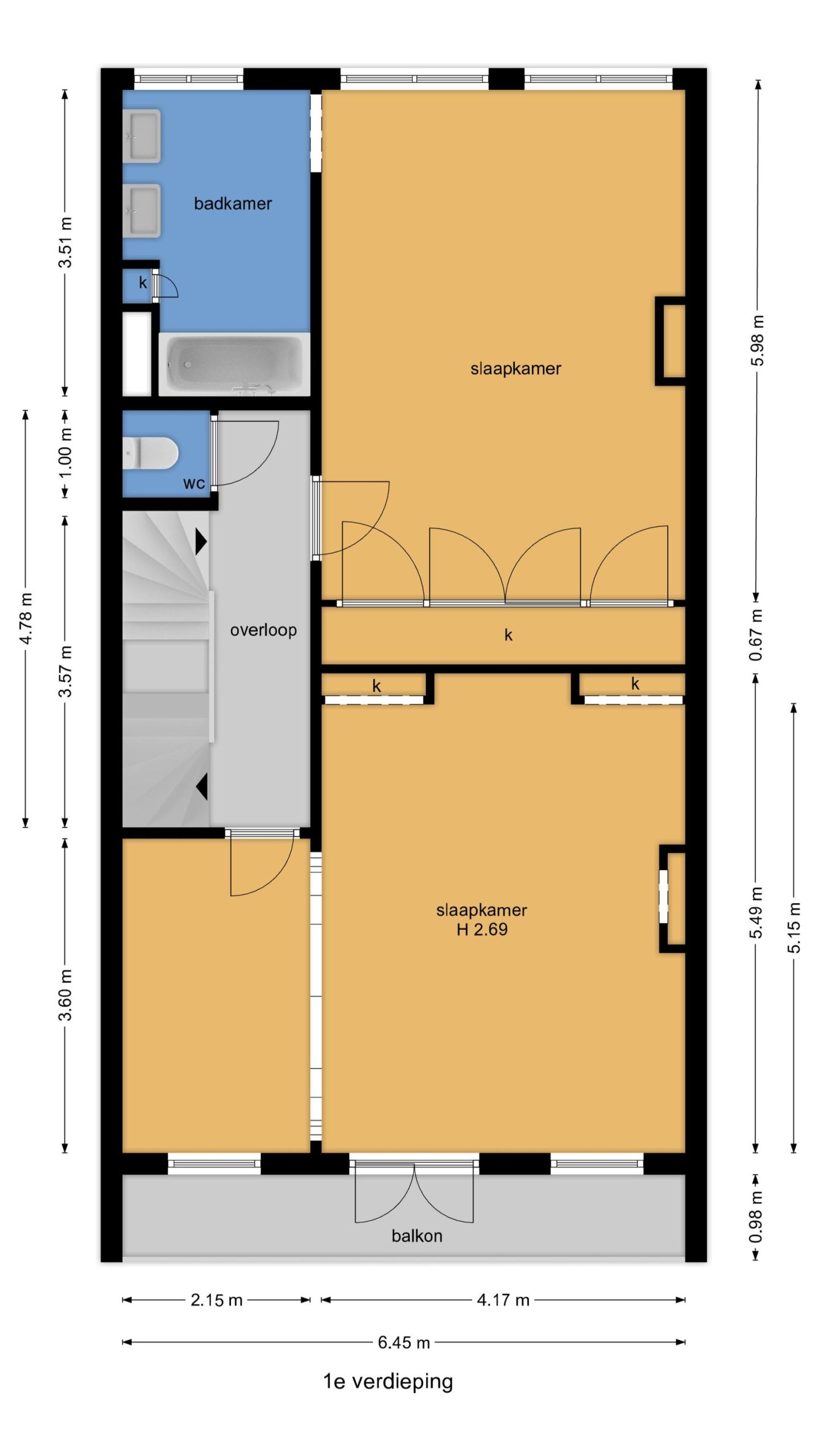
Eerste verdieping
Overloop met toilet. Ruime slaapkamer aan de voorzijde (voorheen twee kamers) met openslaande deuren naar een balkon over de volle breedte. Tweede ruime slaapkamer aan de achterzijde met ingebouwde garderobekast. Badkamer met vaste kast, ligbad met douche, dubbele wastafel en handdoekradiator.
Tweede verdieping
Overloop. Voorslaapkamer met dakkapel en een voorzijkamer met dakkapel. Grote slaapkamer aan de achterzijde met openslaande deuren naar een balkon over de volle breedte. Tweede badkamer met vaste kast, ligbad met douche, wastafel, handdoekradiator en toilet.
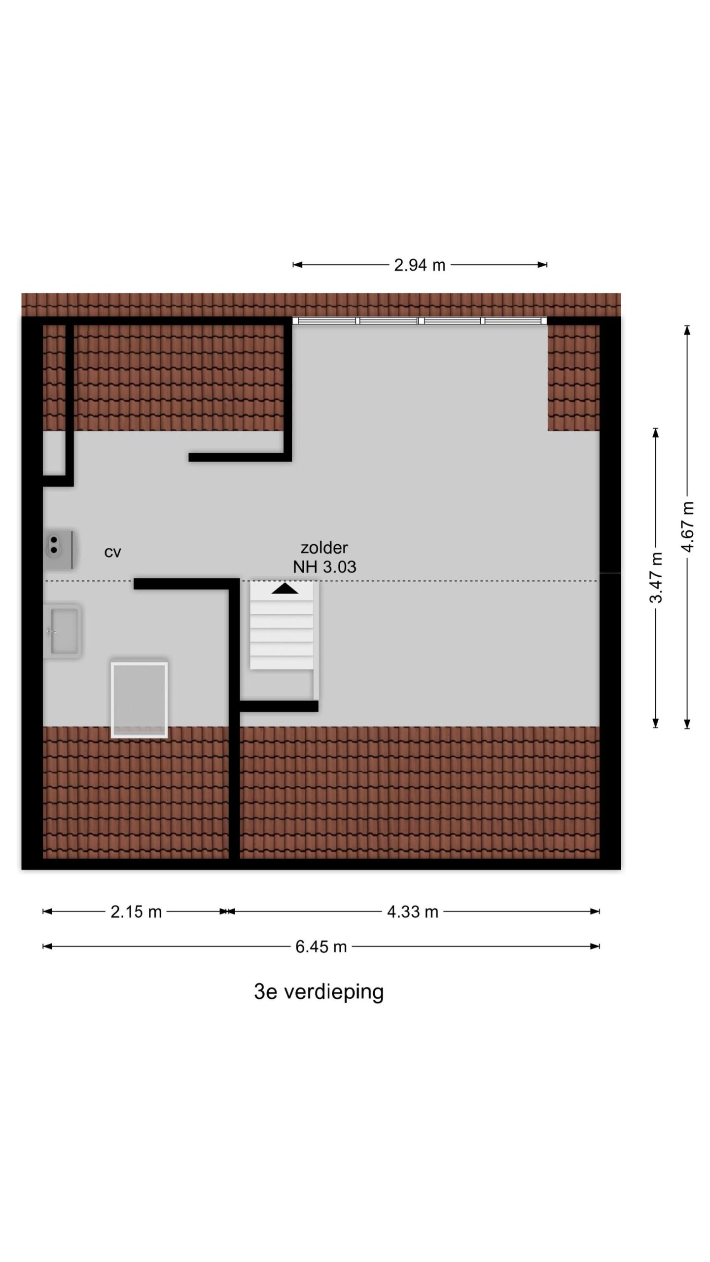
Zolder
Via vaste trap naar de zolder met opstelplaats voor de cv-installatie en daklicht. Ruime slaapkamer met dakkapel.
Waarom dit uw nieuwe (t)huis is:
• Perfecte ligging tussen stad en strand
• Gelegen aan het rustige Hubertuspark met veel groen om je heen
• Maar liefst 5 ruime slaapkamers, 2 badkamers en volop bergruimte
• Diepe, zonnige achtertuin direct aan het bos én een royale voortuin
• Ruimte voor comfortabel gezinsleven én thuiswerken
• Nabij (internationale) scholen, sportclubs, winkels en horeca
• Snelle verbinding naar uitvalswegen en het openbaar vervoer
Kortom: een heerlijk familiehuis met ruimte binnen en buiten op een droomlocatie.
Belangrijk om te weten:
• Erfpacht is eeuwigdurend afgekocht
• Bouwjaar: 1927
• Woonoppervlakte: ca. 246 m2
• Inhoud: ca. 743m3
• Perceel: ca. 395m2
• Energielabel F
• Rijks beschermd stadsgezicht
• Materialenclausule
• Ouderdomsclausule
• Oplevering in overleg
Heeft u interesse in dit familiehuis? Maak dan snel een afspraak. Wij hopen u binnenkort rond te leiden en uw vragen te beantwoorden.
Enthousiast geworden? En heeft u een koophuis? Wij helpen u graag met de verkoop van uw huidige huis/appartement. Wij informeren u vrijblijvend over de mogelijkheden en bieden u een gratis waardebepaling aan. Onze makelaars staan voor u klaar om u te begeleiden in het hele proces!
De informatie is met zorgvuldigheid opgesteld, aan de juistheid hiervan kunnen echter geen rechten worden ontleend. De Vries Robbé B.V. aanvaardt geen aansprakelijkheid voor enige onvolledigheid, onjuistheid of anderszins onjuiste informatie, dan wel voor de gevolgen hiervan
Kenmerken
- StatusVerkocht
- Vraagprijs€ 1.100.000,- k.k.
- AanvaardingIn overleg
Overdracht
- SoortEengezinswoning
- TypeTussenwoning
- Bouwjaar1927
- BouwvormBestaande bouw
- LiggingenAan bosrand, Aan rustige weg, In woonwijk, Beschutte ligging
Bouwvorm
- Woonoppervlakte246 m2
- Inhoud743 m3
- Aantal kamers7
- Aantal slaapkamers6
Indeling
- EnergieklasseF
- Energielabel einddatum7 september 2030
- Warm waterCV ketel
- VerwarmingCV ketel
Energie
- Schuur / BergingVrijstaand steen
Bergruimte
- GarageGeen garage
- Parkeer faciliteitenOpenbaar parkeren, Parkeervergunningen
Parkeergelegenheid
- Permanente bewoningJa
- Onderhoud binnenRedelijk tot goed
- Onderhoud buitenRedelijk tot goed
- Huidig gebruikWoonruimte
- Huidige bestemmingWoonruimte
Overig
- Mechanische ventilatieAanwezig
- Tv kabelAanwezig
- RookkanaalAanwezig
- SchuifpuiAanwezig
Voorzieningen
- Gedeeltelijk gestoffeerd
- Beschermd stads of dorpsgezicht
- Kluswoning
Bijzonderheden
We staan graag voor u klaar.

