's-Gravenhage
Paul Gabriëlstraat 105
€ 689.000,- k.k.
Media
Afbeeldingen
Plattegronden
Omschrijving
Dit goed onderhoudenen lichte dubbel bovenhuis van ca. 136 m² met vier slaapkamers, twee zonnige balkons en energielabel A biedt alles wat je zoekt: ruimte, licht, comfort en een fantastische ligging.
Dé buurt:
U woont hier in een rustige, groene straat in het geliefde Benoordenhout, met de bruisende Van Hoytemastraat om de hoek. Van ambachtelijke speciaalzaken tot trendy koffiebars, goede restaurants en gezellige terrassen – alles ligt binnen handbereik. Voor ontspanning of een picknick ben je zó in Clingendael, Haagse Bos of Arendsdorp/Oostduin. Sportliefhebber? Tennis, hockey, padel, golf en nog veel meer vindt u in de directe omgeving. Binnen enkele minuten fietst u naar het strand, de duinen of het centrum. Ook de verbinding met uitvalswegen (A4, A12, A13 en A44) is ideaal. De belangrijke NS stations Den Haag Laan van NOI en Den Haag Centraal zijn op loop- of fietsafstand.
Het dubbel bovenhuis:
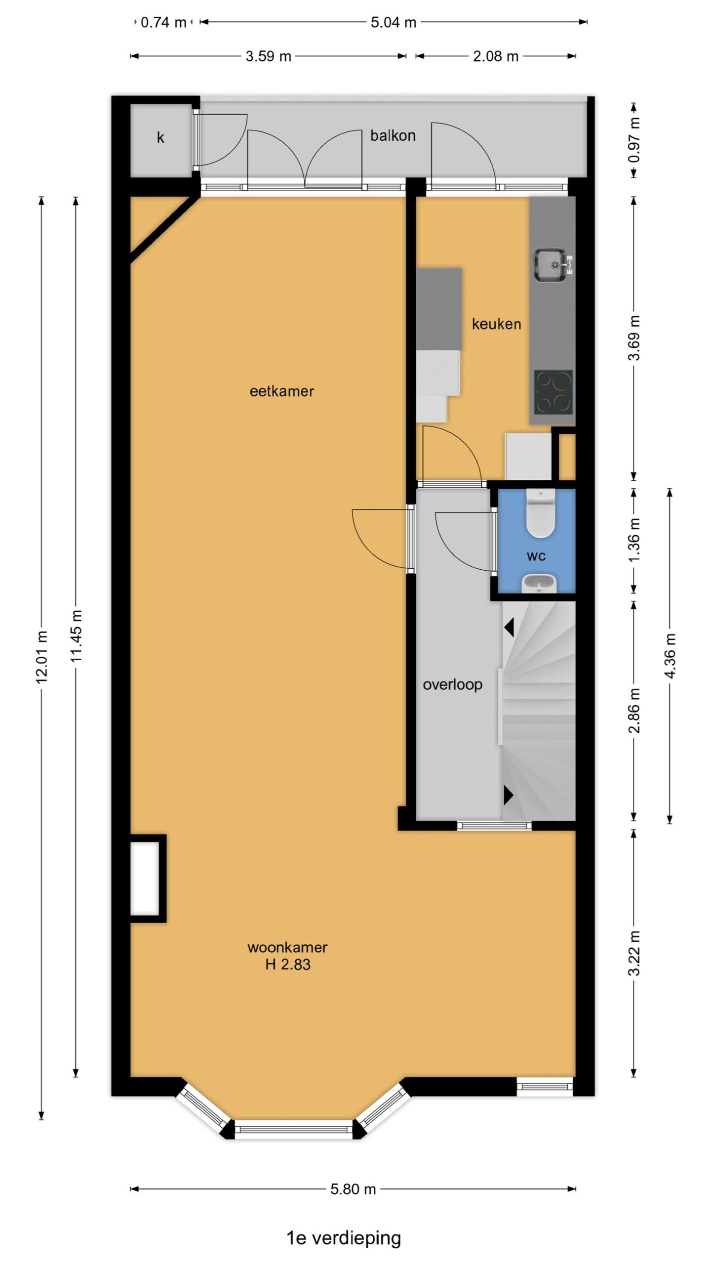
Via uw eigen entree op straatniveau komt u op de eerste verdieping. Grote en lichte woon- & eetkamer met erker aan de voorzijde en openslaande deuren naar het balkon achter. Moderne, dichte keuken (2023) met 5-pits inductiekookplaat, oven, vaatwasser, koel-/vriescombinatie en volop kastruimte. Toilet in de hal. Op de tweede etage: Overloop met wasruimte. Luxe badkamer (2023) met daglicht, ligbad, douche, wastafel, toilet en handdoekradiator. Twee slaapkamers aan de achterzijde met openslaande deuren naar het balkon. Aan de voorzijde nog een ruime slaapkamer en een extra logeerkamer met vaste trap naar de vliering.
Waarom dit uw nieuwe (t)huis is:
• Ca. 136 m² woonoppervlak
• Vier slaapkamers
• Twee zonnige balkons
• Energielabel A plus zonnepanelen en dak- en vloerisolatie
• Twee slaapkamers voorzien van Daikin airco units voor koeling of verwarming
• Moderne keuken en badkamer (2023)
• Groene, rustige en populaire wijk
• Nabij winkels, parken, sportfaciliteiten, strand en uitvalswegen
Dit bovenhuis combineert ruimte, licht, comfort en een toplocatie – precies wat u zoekt om te wonen, werken én genieten in Den Haag.
Belangrijk om te weten:
• Eigen grond
• Bouwjaar:1932
• Woonoppervlakte: ca. 135,9 m2
• Energielabel: A
• Tien zonnepanelen (2023)
• Actieve Vergadering van Eigenaren met een bijdrage van ca. € 100,- per maand (formele VVE in oprichting)
• Beschermd stadsgezicht
• Materialenclausule
• Ouderdomsclausule
• Oplevering in overleg
Heeft u interesse in dit appartement? Maak dan snel een afspraak. Wij hopen u binnenkort rond te leiden en uw vragen te beantwoorden. Enthousiast geworden? En heeft u een koophuis? Wij helpen u graag met de verkoop van uw huidige huis/appartement. Wij informeren u vrijblijvend over de mogelijkheden en bieden u een gratis waardebepaling aan. Onze makelaars staan voor u klaar om u te begeleiden in het hele proces! De informatie is met zorgvuldigheid opgesteld, aan de juistheid hiervan kunnen echter geen rechten worden ontleend. De Vries Robbé B.V. aanvaardt geen aansprakelijkheid voor enige onvolledigheid, onjuistheid of anderszins onjuiste informatie, dan wel voor de gevolgen hiervan.
Kenmerken
- StatusVerkocht
- Vraagprijs€ 689.000,- k.k.
- AanvaardingIn overleg
Overdracht
- Bouwjaar1932
- BouwvormBestaande bouw
- LiggingenAan rustige weg, In woonwijk
Bouwvorm
- Woonoppervlakte136 m2
- Inhoud466 m3
- Aantal kamers5
- Aantal slaapkamers4
- Aantal woonlagen2
Indeling
- EnergieklasseA
- Energielabel einddatum28 augustus 2035
- IsolatieDakisolatie, Vloerisolatie, Grotendeels dubbelglas
- Warm waterCV ketel
- VerwarmingCV ketel
- C.V.-KetelEigendom
Energie
- GarageGeen garage
- Parkeer faciliteitenOpenbaar parkeren, Parkeervergunningen
Parkeergelegenheid
- Permanente bewoningJa
- Onderhoud binnenGoed
- Onderhoud buitenGoed
- Huidig gebruikWoonruimte
- Huidige bestemmingWoonruimte
- VVE Bijdrage€ 100,-
Overig
- Mechanische ventilatieAanwezig
- Tv kabelAanwezig
- AirconditioningAanwezig
- RookkanaalAanwezig
- DakraamAanwezig
- Glasvezel kabelAanwezig
- ZonnepanelenAanwezig
Voorzieningen
- Gedeeltelijk gestoffeerd
- Beschermd stads of dorpsgezicht
Bijzonderheden
We staan graag voor u klaar.

