's-Gravenhage
Fluwelen Burgwal 26
€ 565.000,- k.k.
Media
Afbeeldingen
Plattegronden
Omschrijving
For English see below
Midden in de Haagse binnenstad, aan de Fluwelen Burgwal, ligt dit moderne appartement (bouwjaar 2001) op de 3e verdieping. De woning is recent gerenoveerd en voelt direct verzorgd aan: een nieuwe vloer, een moderne open keuken met luxe inbouwapparatuur en een luxe badkamer met zowel ligbad als inloopdouche.
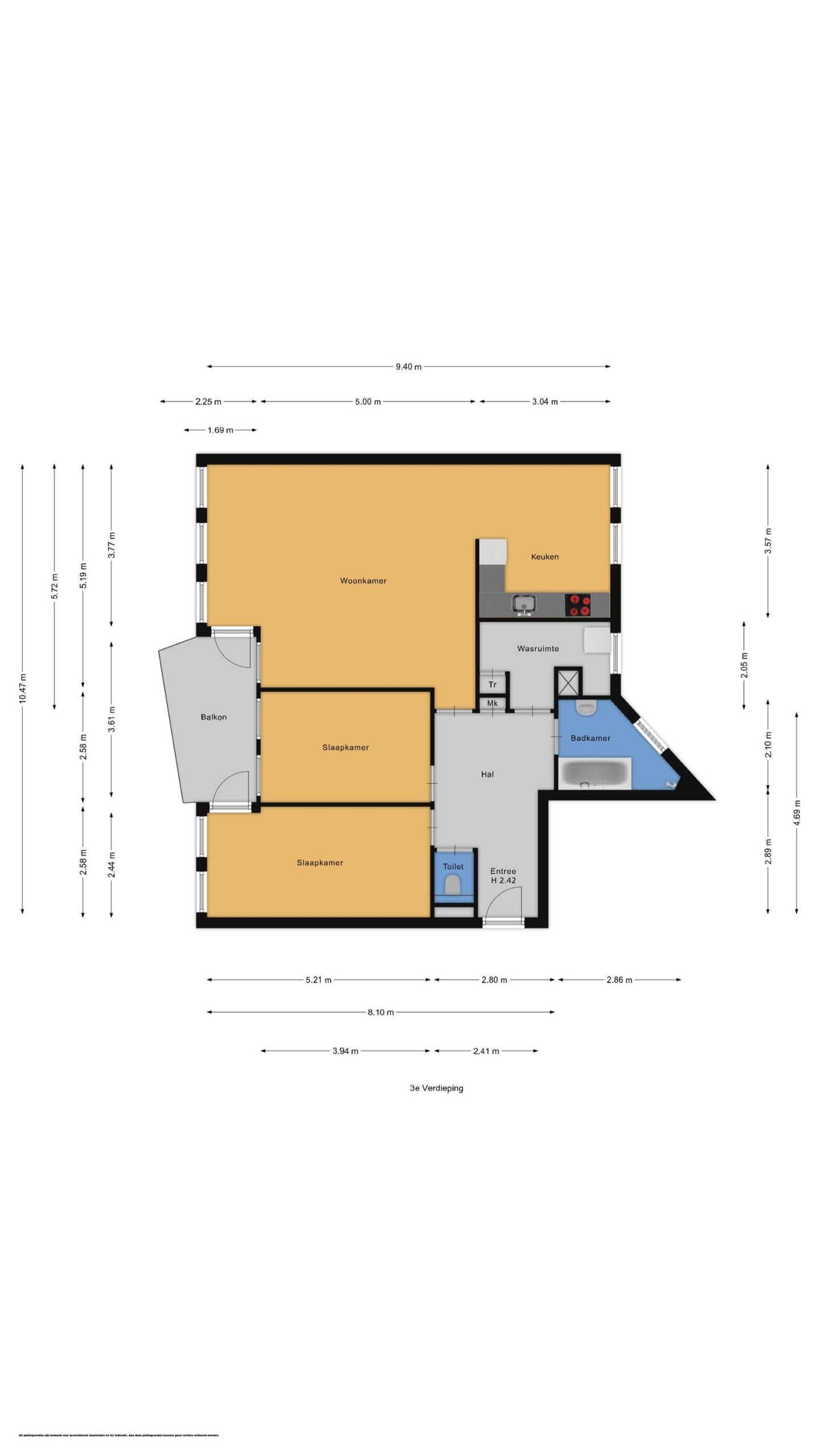
Wat hier vooral opvalt is de ruimte in de leefkamer. De woon-/eetkamer is royaal opgezet en vormt samen met de open keuken een prettige plek om te leven, te werken en gasten te ontvangen. Via de woonkamer is er toegang tot het balkon. Aan de voorzijde, richting de Fluwelen Burgwal, bevinden zich twee slaapkamers van goed formaat, met toegang tot het balkon.
De locatie is precies wat u van de binnenstad verwacht: restaurants, winkels, cultuur (theaters, bioscopen, musea) om de hoek, en daarnaast praktisch dichtbij Den Haag Centraal en de uitvalswegen. Handig voor forenzen, en net zo fijn als u graag alles lopend of met het OV doet.
Indeling
Begane grond / entreegebouw:
Centrale entree met lift en trap naar de 3e verdieping.
3e verdieping:
Hal met video-intercom. Zeer ruime woon-/eetkamer met open keuken en toegang tot het balkon. Twee slaapkamers aan de voorzijde met toegang tot het balkon. Luxe, recent vernieuwde badkamer met ligbad, inloopdouche en wastafel, plus handdoekradiator. Separaat toilet met fonteintje.
Onderbouw:
Ruime berging in de onderbouw.
Bijzonderheden
+ Eigen grond
+ Woonoppervlak ca. 90 m²
+ Bouwjaar 2001
+ Zeer centraal en toch rustig gelegen
+ Gerenoveerd in 2025
+ Actieve VvE met een maandelijkse bijdrage van € 484,49 per maand
+ Energylabel A+
+ Model NVM-koopakte van toepassing met de niet-bewonersclausule, ouderdoms- en asbestclausules
Heeft u interesse? Neem contact met ons op voor een bezichtiging. We laten u de woning graag zien en vertellen u met plezier meer over het appartement en de omgeving.
En wilt u ook uw eigen woning verkopen? Wij informeren u graag vrijblijvend en bieden desgewenst een gratis waardebepaling aan.
De informatie is met zorgvuldigheid samengesteld. Aan de juistheid kunnen echter geen rechten worden ontleend. De Vries Robbé B.V. aanvaardt geen aansprakelijkheid voor eventuele onvolledigheden of onjuistheden, dan wel de gevolgen daarvan.
——————————
Modern, comfortable and right in the centre of The Hague: this apartment (built in 2001) is located on the 3rd floor and has been recently renovated. A new floor, a contemporary open kitchen with luxury built-in appliances and a stylish bathroom with both a bath and separate walk-in shower make it an easy place to move into and feel at home.
The apartment stands out for its generous living space. The living/dining room is spacious (approx. 42 m² as stated) and connects naturally to the open kitchen, creating a practical and welcoming heart of the home. From the living room you step out onto the balcony. At the front side, facing the Fluwelen Burgwal, you will find two well-proportioned bedrooms, both with access to the balcony.
The location is as central as it gets: restaurants, shops and cultural highlights within walking distance, while The Hague Central Station is close by for excellent public transport connections. Road access is convenient as well.
Layout
Ground floor / entrance:
Central entrance with lift and stairs to the 3rd floor.
3rd floor (apartment):
Hallway with videophone. Spacious living/dining room with open kitchen and access to the balcony. Two bedrooms at the front, both with access to the balcony. Renovated luxury bathroom with bath, walk-in shower and washbasin, plus towel radiator. Separate toilet with hand basin.
Basement level:
Private storage unit in the basement.
Features:
+ Own ground
+ Living area approx. 90 m²
+ Recently renovated: new kitchen, luxury bathroom and new flooring
+ Energy label A+
+ 3rd floor with lift
+ Spacious living/dining room (approx. 42 m² as stated)
+ 2 bedrooms
+ Balcony overlooking the Fluwelen Burgwal
+ Private cellar storage
+ Active VvE with a montly contribution of € 484,49 per month
+ Prime city-centre location near stations, shops and leisure
+ NVM purchase agreement applicable
+ Not occupied clause, Age and asbestos clauses will be included in the deed of sale
We would be delighted to show you this unique courtyard home and discuss the possibilities with you.
Thinking of selling your current home as well? We offer personal guidance and a complimentary valuation.
The information provided has been compiled with care; however, no rights can be derived from its accuracy. De Vries Robbé B.V. accepts no liability for any incompleteness, inaccuracies, or consequences thereof.
Interested? Contact us to schedule a viewing. We will be happy to show you around and answer any questions.
Kenmerken
- StatusBeschikbaar
- Vraagprijs€ 565.000,- k.k.
- AanvaardingIn overleg
Overdracht
- BouwvormBestaande bouw
- LiggingenIn centrum
Bouwvorm
- Woonoppervlakte90 m2
- Inhoud278 m3
- Aantal kamers3
- Aantal slaapkamers2
- Aantal woonlagen1
Indeling
- EnergieklasseA+
- Energielabel einddatum4 december 2035
- IsolatieGedeeltelijk dubbelglas
- Warm waterStadsverwarming
- VerwarmingStadsverwarming
Energie
- Schuur / BergingInpandig
Bergruimte
- GarageGeen garage
- Parkeer faciliteitenBetaald parkeren, Parkeervergunningen
Parkeergelegenheid
- Permanente bewoningJa
- Onderhoud binnenGoed tot uitstekend
- Onderhoud buitenGoed
- Huidig gebruikWoonruimte
- Huidige bestemmingWoonruimte
- VVE Bijdrage€ 484,-
Overig
- Mechanische ventilatieAanwezig
- Tv kabelAanwezig
- LiftAanwezig
Voorzieningen
We staan graag voor u klaar.

