's-Gravenhage
Badhuisweg 63
€ 1.369.000,- k.k.
Media
Afbeeldingen
Plattegronden
Omschrijving
Open Huis op afspraak: vrijdag 17 oktober 12.00 – 16.00uur.
Het huis dient gemoderniseerd en deels gerenoveerd te worden.
Zeer unieke 4 laags, deels gerenoveerde, halfvrijstaande Villa “Ars Longa, Vita Brevis” aan de Badhuisweg 63 in Den Haag.
Achter de solide basis van deze woning schuilt een unieke mogelijkheid: met een verdere renovatie naar uw eigen woonwensen creëert u hier een comfortabel en toekomstbestendig droomhuis.
Ideaal voor de koper die kansen ziet én wil aanpakken!
De villa is ontworpen voor kunstenaar Tétar van Elven in ca. 1895 en deels gerenoveerd in 2013. Zeer uniek is het binnenzwembad dat achter in de uitbouw gelegen is en verder de ruime opzet van huis en indeling. De bar beneden en de garage op dit ruime perceel zorgen voor een zeer geschikt familiehuis dichtbij het strand en het duingebied van de Waalsdorpervlakte!
De villa ligt aan een van de mooiste straten van Den Haag. De Badhuisweg en heeft een prachtig uitzicht op de koepel van Het Kurhaus.
De locatie zorgt voor een serene rust met de nabijheid van de levendige boulevard, die op slechts enkele minuten loopafstand ligt.
Ondanks de drukte rondom Scheveningen is het aan de Badhuisweg heerlijk kalm en vredig.
Op enkele wandelminuten afstand bevinden zich het Westbroekpark en de Mets tennisbanen. De levendige Gentsestraat en Stevinstraat, het middelpunt van het gewilde Belgisch Park, zijn op enkele minuten lopen te bereiken. Hier vindt u de winkels voor alle dagelijkse boodschappen, gezellige restaurants en cafés.
Het Belgisch Park staat bekend om de prachtige huizen die gelegen zijn in en rondom het groen, de wijk heeft een speelse indeling dat doet denken aan een stadspark.
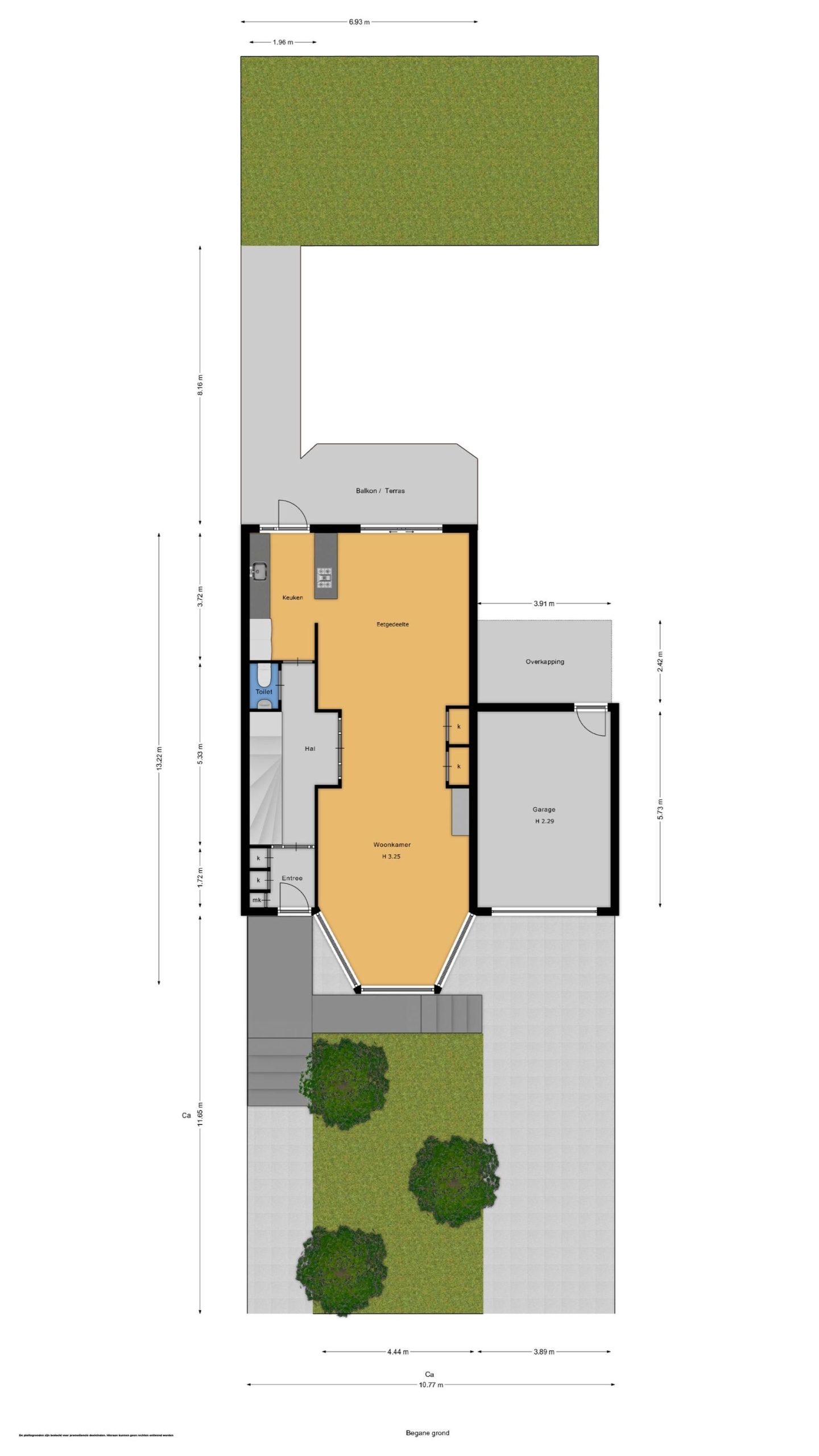
Het perceel is zeer ruim bemeten en u vindt hier o.a. de voortuin met oprit voor meerdere auto’s en garage met elektrische opener.
De ruime entree bestaat uit een vestibule en hal en leidt naar de riante kamer ensuite met sfeervolle hoekhaard. De rookkanalen zijn alle vernieuwd. De open keuken is voorzien van een kookeiland en de gebruikelijk inbouw-apparatuur. Aan de achterzijde bevindt zich een zeer royaal zonneterras. Nagenoeg de hele dag zon en zorgt voor een heerlijk binnen-buiten, buiten-binnen gevoel.
Vanaf het zonneterras een prettig vrij uitzicht en op de lager gelegen binnentuin met overdekt zwembad en sauna.
In het souterrain bevindt zich een bar, voorzien van koelkast en vaatwasser en verdere mogelijkheden om te ontspannen. Aan de achterzijde bevindt zich de tuinkamer, met veel natuurlijk licht en uitzicht op de binnentuin en het achtergelegen binnenzwembad.
In de hal richting het achterhuis, met binnenzwembad, bevindt zich een extra keuken. Bij het zwembad bevindt zich een sauna en kleine badkamer.
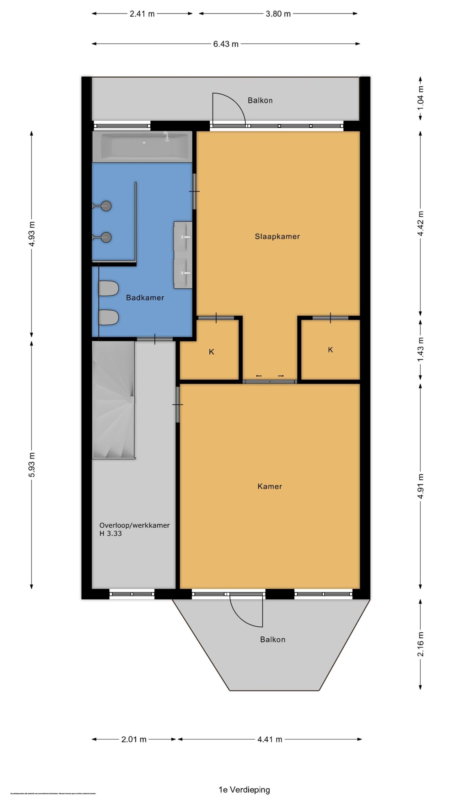
Op de eerste verdieping bevindt zich een ruime overloop, hierbij heeft u voldoende mogelijkheden tot het creëren van een extra thuiskantoor of extra slaapkamer.
Aan de voorzijde bevindt zich een grote werkkamer met balkon, open haard (voorzien van gasaansluiting) met luxe marmeren schouw. Aan de achterzijde bevindt zich de ruime ouderslaapkamer met airconditioning en toegang tot een balkon en de badkamer ensuite. De slaapkamer is in 2013 voorzien van nieuwe vloeren en twee moderne inloopkasten met ingebouwde spiegels en automatische verlichting.
De luxe (in 2013 geheel vernieuwde) badkamer, voorzien van vloerverwarming, luxe Porcelanosa tegels, inbouwspots met dimmers, is eveneens te bereiken vanuit de overloop en is voorzien van een zeer royale 2-kops inloopdouche, royaal whirlpool/bubbelbad met spatwaterdichte badkamertelevisie, dubbele wastafel, wc en separaat bidet (Villeroy en Boch).
Op de tweede verdieping is volop ruimte voor een nieuwe indeling met meerdere slaapkamers. De huidige indeling is als volgt:
Een overloop met daklicht. De overloop biedt veel ruimte en kan daarnaast worden ingedeeld als werkplek of speelruimte.
Aan de voorkant bevindt zich een grote slaapkamer en aan de achterkant een grote slaapkamer. Beide over de volledige breedte van het huis, met mogelijkheden om er eenvoudig 4 slaapkamers van te maken.
Grenzend aan de overloop bevindt zich een grote berging/inloopkast en de 2e badkamer.
De tweede badkamer (in 2013 geheel vernieuwd en in dezelfde stijl als de hoofdbadkamer) is voorzien van een ligbad, wastafel en toilet. De reeds aanwezige kitchenette maakt het gebruik als afgescheiden woon- of gastenverblijf mogelijk.
Met een totale oppervlakte van ca. 380 m²(!) biedt deze halfvrijstaande villa een combinatie van ruimte, comfort en luxe, verborgen achter een bescheiden façade.
Bijzonderheden:
– Gelegen op eigen grond
– Ca. 380 m2 Woonoppervlakte (exclusief zwembad en garage)
– Originele maar ook moderne details
– Drie badkamers, 4 toiletten, 2 keukens, kitchenette
– Ruime garage en oprit op eigen perceel
– Bouwjaar ca. 1930
– Woonoppervlakte ca. 420 m2, incl. achterliggende binnenzwembad/sauna en garage
– Bouwkundige keuring uitgevoerd in mei 2025.
– Hoofddak recentelijk vernieuwd in 2021
– De Ouderdomsclausule, Materialenclausule en As is – Where is clausule zijn onderdeel van de NVM Koopovereenkomst
Heeft u interesse in deze villa? Wij plannen graag een moment voor u in voor een persoonlijke bezichtiging van dit huis. Onze makelaar staat voor u klaar bij de woning en kan u alles vertellen over dit huis, terwijl u rondkijkt. En natuurlijk kunt u dan al uw vragen stellen. Zien wij u binnenkort?
Enthousiast geworden? En heeft u een koophuis? Wij helpen u graag met de verkoop van uw huidige huis/appartement. Wij informeren u vrijblijvend over de mogelijkheden en bieden u een gratis waardebepaling aan. Onze makelaars staan voor u klaar om u te begeleiden in het hele proces!
De informatie is met zorgvuldigheid opgesteld, aan de juistheid hiervan kunnen echter geen rechten worden ontleend.
————————————-
Open House by appointment: Friday, October 17th, 12:00 – 4:00 PM.
The property requires modernization and partial renovation.
Very Unique 4-Level, Partially Renovated, Semi-Detached Villa “Ars Longa, Vita Brevis” on Badhuisweg 63 in The Hague
Behind the solid foundation of this property lies a unique opportunity: with further renovation tailored to your personal living preferences, you can create a comfortable and future-proof dream home.
Ideal for the buyer who sees opportunities—and is ready to seize them!
The villa was designed for artist Tétar van Elven around 1895 and was partially renovated in 2013. A truly unique feature is the indoor swimming pool located in the rear extension, along with the spacious layout and floor plan of the home. The downstairs bar and garage on this generous plot make this a perfect family home close to the beach and the dune area of the Waalsdorpervlakte!
The villa is situated on one of The Hague’s most beautiful streets: the Badhuisweg, and boasts a stunning view of the dome of the Kurhaus.
The location offers serene peace with the lively boulevard just a few minutes’ walk away.
Despite the bustle around Scheveningen, Badhuisweg remains pleasantly calm and peaceful.
Within walking distance are the Westbroekpark and the Mets tennis courts. The lively Gentsestraat and Stevinstraat, the heart of the sought-after Belgisch Park, are just a few minutes’ walk away. Here you’ll find shops for all your daily needs, as well as cozy restaurants and cafés.
Belgisch Park is known for its beautiful homes set in and around green spaces, with a playful layout reminiscent of an urban park.
The plot is very generously sized and includes a front garden with driveway for multiple cars and a garage with electric door.
The spacious entrance features a vestibule and hallway leading to the grand en-suite living area with a charming corner fireplace. All chimneys have been renewed. The open kitchen includes a cooking island and the usual built-in appliances. At the rear, there’s a very generous sun terrace. With sun almost all day, this creates a wonderful indoor-outdoor, outdoor-indoor living experience.
From the sun terrace, you have a pleasant open view and access to the lower-level inner garden with covered swimming pool and sauna.
In the basement you’ll find a bar equipped with fridge and dishwasher, along with further relaxation space. At the rear is the garden room, flooded with natural light and overlooking the inner garden and indoor pool.
In the hallway leading to the rear section of the house, where the pool is located, there is an extra kitchen. The pool area also includes a sauna and a small bathroom.
The first floor features a spacious landing, offering plenty of options to create a home office or additional bedroom.
At the front is a large study with balcony, open fireplace (with gas connection), and luxurious marble mantelpiece. At the rear is the large master bedroom with air conditioning, access to a balcony, and an ensuite bathroom. This bedroom was updated in 2013 with new flooring and two modern walk-in wardrobes with built-in mirrors and automatic lighting.
The luxurious bathroom (completely renovated in 2013), accessible from both the master bedroom and the landing, features underfloor heating, luxury Porcelanosa tiles, recessed dimmable lighting, a spacious double rain shower, large whirlpool tub with waterproof bathroom TV, double sink, toilet, and separate bidet (Villeroy & Boch).
The second floor offers ample space for a new layout with multiple bedrooms. The current layout includes:
A landing with skylight. The landing provides a lot of space and can also be used as a work or play area.
At the front is a large bedroom, and at the rear another large bedroom—both spanning the full width of the house, offering potential to easily convert them into four bedrooms.
Adjacent to the landing is a large storage room/walk-in closet and a second bathroom.
The second bathroom (also fully renovated in 2013 and in the same style as the main bathroom) features a bathtub, sink, and toilet. The existing kitchenette makes it suitable as a separate living or guest area.
With a total area of approx. 380 m²(!), this semi-detached villa offers a unique combination of space, comfort, and luxury—hidden behind a modest façade.
Features:
+ Freehold property
+ Approx. 380 m² living area (excluding pool and garage)
+ Combination of original and modern details
+ Three bathrooms, four toilets, two kitchens, one kitchenette
+ Spacious garage and driveway on private plot
+ Built circa 1930
+ Total area approx. 420 m², including indoor pool/sauna and garage
+ Structural inspection carried out in May 2025
+ Main roof recently renewed in 2021
+ The Age Clause, Materials Clause, and “As is – Where is” Clause apply in the NVM purchase agreement
Interested in this villa?
We would be happy to schedule a personal viewing for you. Our real estate agent will meet you at the property and provide all the details while you take a tour. Of course, you’re welcome to ask any questions you may have. Will we see you soon?
Feeling enthusiastic? Already own a home?
We’re happy to help you sell your current house or apartment. We offer free, no-obligation advice and a valuation of your property. Our agents are ready to guide you through the entire process!
The information has been compiled with care, but no rights can be derived from its accuracy.
Kenmerken
- StatusBeschikbaar
- Vraagprijs€ 1.369.000,- k.k.
- AanvaardingIn overleg
Overdracht
- SoortHerenhuis
- TypeHalfvrijstaande woning
- BouwvormBestaande bouw
- LiggingenAan rustige weg, Beschutte ligging
Bouwvorm
- Woonoppervlakte380 m2
- Inhoud1.358 m3
- Aantal kamers9
- Aantal slaapkamers5
Indeling
- EnergieklasseE
- Energielabel einddatum19 juni 2034
- IsolatieGrotendeels dubbelglas
- Warm waterCV ketel
- VerwarmingCV ketel
- C.V.-KetelEigendom
Energie
- GarageAangebouwd steen
- Parkeer faciliteitenBetaald parkeren, Parkeervergunningen, Op eigen terrein
Parkeergelegenheid
- Permanente bewoningJa
- Onderhoud binnenMatig tot redelijk
- Onderhoud buitenRedelijk
- Huidig gebruikWoonruimte
- Huidige bestemmingWoonruimte
Overig
- Tv kabelAanwezig
- ZwembadAanwezig
- RookkanaalAanwezig
- SaunaAanwezig
Voorzieningen
- Beschermd stads of dorpsgezicht
Bijzonderheden
Brochure
Download de brochureWe staan graag voor u klaar.

